価格 5390万円
管理費等 0円
建物面積 85.42m 2 ( 25.83坪 )
間取り 3LDK
土地面積 111.31m2 ( 33.67坪 )
築年数 2024年02月 (築1年)
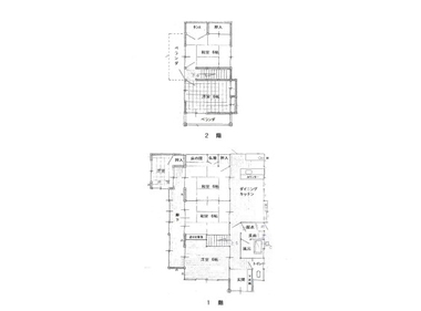
価格 5300万円
建物面積 164.49m 2 ( 49.75坪 )
間取り 6LDK
土地面積 350.38m2 ( 105.98坪 )
築年数
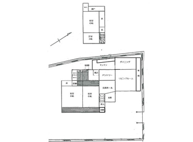
価格 4160万円
建物面積 110.13m 2 ( 33.31坪 )
土地面積 143.62m2 ( 43.44坪 )
築年数 2023年04月 (築2年)
柱、土台は広島県産材檜、耐震等級3で安心安全な構造 床は無垢の杉フローリング、室内の壁は調湿性、消臭効果のあるスイス漆喰 ガス衣類乾燥機「乾太くん」設置済みです。 お部屋全体にシックな色調です。 収納スペースが豊富です。
価格 4000万円
建物面積 194.04m 2 ( 58.69坪 )
間取り 4DK
土地面積 145.95m2 ( 44.14坪 )
栄町商店街の中の中古物件です。元店舗です。1階部分に車3台駐車可能です。2017年にリフォームしています。是非ご内見ください。
価格 2500万円
建物面積 92m 2 ( 27.83坪 )
間取り 2LDK
土地面積 114.53m2 ( 34.64坪 )
築年数 2010年08月 (築15年)
建物面積 108m 2 ( 32.67坪 )
間取り 4LDK
土地面積 154.57m2 ( 46.75坪 )
築年数 1997年08月 (築28年)
1階店舗(約13帖)、2階住居 駐車場2台分あり。 昭和西小学校の正門前です。
価格 2200万円
建物面積 150.91m 2 ( 45.65坪 )
間取り
土地面積 492.77m2 ( 149.06坪 )
土地登記面積は315.15㎡ですが、実際には約490㎡(約149坪)あります。
価格 2100万円
建物面積 114.75m 2 ( 34.71坪 )
土地面積 242.28m2 ( 73.28坪 )
築年数 2008年11月 (築17年)
キッチンにパントリー、玄関にシューズクローク、2階に3.77帖のウォークインクローゼットあり、収納豊富です。 リビングにカウンターデスクがあり、お子様のお勉強の見守りができます。 敷地内にシャッター付きのガレージがあります。 お庭があります。日当たり良好です。
価格 1790万円
建物面積 135m 2 ( 40.83坪 )
土地面積 208.42m2 ( 63.04坪 )
築年数 2006年03月 (築19年)
テレワークされる方には嬉しい6帖の書斎があります。
価格 1780万円
間取り 6K
土地面積 175.2m2 ( 52.99坪 )
築年数 1983年02月 (築42年)
呉医療センターより650m、海上自衛隊呉地方総監部より450m
価格 1350万円
建物面積 112.39m 2 ( 33.99坪 )
土地面積 364.41m2 ( 110.23坪 )
テラスから呉市内が一望。更地渡し相談可能です。柔軟な対応いたします。
価格 1200万円
建物面積 128.99m 2 ( 39.01坪 )
土地面積 241.38m2 ( 73.01坪 )
築年数 1985年11月 (築40年)
日当たりの良い昭和モダンなお家です。 はま寿司まで550m歩いて行けます。 コープ焼山まで600m
価格 750万円
建物面積 96.2m 2 ( 29.1坪 )
土地面積 357.58m2 ( 108.16坪 )
築年数 1965年03月 (築60年)
古家解体して更地渡しの場合の価格は1250万円です。 建物はリフォームすれば使用できます。
価格 600万円
建物面積 93.05m 2 ( 28.14坪 )
土地面積 237.29m2 ( 71.78坪 )
築年数 1974年04月 (築51年)
カーポート付きの駐車場があります。昭和南小学校まで290mです。ウォンツ、しまむらまで800m、ゴルフ練習場まで900m
建物面積 126.69m 2 ( 38.32坪 )
間取り 5K
土地面積 236m2 ( 71.39坪 )
築年数 1974年12月 (築51年)
70坪以上 日当たり良好
価格 590万円
建物面積 113.16m 2 ( 34.23坪 )
間取り 6DK
土地面積 234.15m2 ( 70.83坪 )
築年数 1970年01月 (築56年)
建物の増築部分が未登記です。築年数が経っていますが、リフォームがされており、美邸です。 堀込駐車場1台分あります。
価格 480万円
建物面積 81.51m 2 ( 24.65坪 )
土地面積 509.28m2 ( 154.05坪 )
築年数 1975年01月 (築51年)
価格 450万円
建物面積 96.69m 2 ( 29.24坪 )
間取り 5LDK
土地面積 354.95m2 ( 107.37坪 )
築年数 1966年06月 (築59年)
昭和中央小学校まで500m、閑静な住宅街です。増築部分が未登記です。
価格 360万円
建物面積 90.78m 2 ( 27.46坪 )
間取り 5DK
土地面積 125.11m2 ( 37.84坪 )
築年数 1976年12月 (築49年)
車2台分の駐車場あり
価格 350万円
建物面積 119.04m 2 ( 36坪 )
土地面積 234.31m2 ( 70.87坪 )
築年数 1987年01月 (築39年)
長迫小学校まで650m、セブンイレブンまで450m、スーパーピュアクックまで650mです。
価格 330万円
建物面積 114.27m 2 ( 34.56坪 )
土地面積 202.47m2 ( 61.24坪 )
前面道路は普通車通行が可能です。普通車1台分の駐車場があります。 2階にはサンルームがあり、お天気が悪くても洗濯物の出し入れの心配が不要です。
価格 310万円
建物面積 95.19m 2 ( 28.79坪 )
土地面積 160.87m2 ( 48.66坪 )
築年数 1981年03月 (築44年)
インスペクション(建物状況調査)済み物件です。セブンイレブンまで300m、ウォンツまで700mです。
価格 300万円
建物面積 96.88m 2 ( 29.3坪 )
土地面積 224.15m2 ( 67.8坪 )
築年数 1982年11月 (築43年)
リフォームは必要です。
価格 100万円
建物面積 71.2m 2 ( 21.53坪 )
土地面積 174.27m2 ( 52.71坪 )
築年数 1966年10月 (築59年)
価格 50万円
建物面積 152.06m 2 ( 45.99坪 )
間取り 11K
土地面積 154.9m2 ( 46.85坪 )
リフォームして賃貸向き