中古戸建 呉市内神町
☆値下げしました。1階部分は昭和初期の古民家です。格子戸をくぐると懐かしさがこみ上げてきます。
-
アクセス
- 呉線 呉駅 から バス8}分 、バス停 ( 郷町 ) から 徒歩10分
-
価格
- 330万 円
-
返済目安
- 円/月
- ローンシミュレーターはこちら
-
間取り
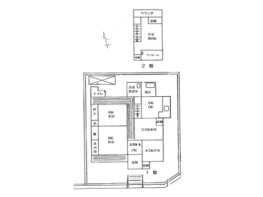
- 5DK 南西向き
-
土地面積
- 202.47m 2 ( 61.24坪 )
-
建物面積
- 114.27m 2 ( 34.56坪 )
-
築年月
- -
間取り図
詳細・設備・条件・取引について
基本
| 問い合わせ番号 | 1000riki_4_443 | ||
|---|---|---|---|
| アクセス | 呉線 呉駅 から バス8分 、バス停 ( 郷町 ) から 徒歩10分 | 種別 | 一戸建て |
| 所在地 |
広島県呉市内神町 8番1号
|
学校区 | 荘山田小学校 片山中学校 |
| 問い合わせ番号 | 1000riki_4_443 |
|---|---|
| アクセス | 呉線 呉駅 から バス8分 、バス停 ( 郷町 ) から 徒歩10分 |
| 種別 | 一戸建て |
| 所在地 |
広島県呉市内神町 8番1号
|
| 学校区 | 荘山田小学校 片山中学校 |
費用
| 価格 | 330万円 | 公庫・融資 | - |
|---|---|---|---|
| 借地期間 | -年 | 地代 | -円 |
| 駐車場 | 敷地内 | バイク置場 | - |
| 駐輪場 | - | ローンの目安 | 円/月 |
| 価格 | 330万円 |
|---|---|
| 公庫・融資 | - |
| 借地期間 | -年 |
| 地代 | -円 |
| 駐車場 | 敷地内 |
| バイク置場 | - |
| 駐輪場 | - |
| ローンの目安 | 円/月 |
土地
| 土地権利 | 所有権 | 土地持分 | - |
|---|---|---|---|
| 土地面積 (公簿) | 202.47m 2 ( 61.24坪 ) | 土地面積 (実測) | - |
| 私道負担面積 | - | 私道負担割合 | - |
| セットバック | 有 | 接道 |
南西 公道3.8m
南東 公道1.9m |
| 建蔽率 | 60% | 容積率 | 160% |
| 地目 | 宅地 | 地勢 | ひな段 |
| 都市計画 | 市街化区域 | 用途地域 | 第一種中高層住居 |
| 防火 | - | 高度地区 | - |
| 国土法届出 | - | その他法令上の制限 | - |
| 土地権利 | 所有権 |
|---|---|
| 土地持分 | - |
| 土地面積 (公簿) | 202.47m 2 ( 61.24坪 ) |
| 土地面積 (実測) | - |
| 私道負担面積 | - |
| 私道負担割合 | - |
| セットバック | 有 |
| 接道 |
南西 公道3.8m
南東 公道1.9m |
| 建蔽率 | 60% |
| 容積率 | 160% |
| 地目 | 宅地 |
| 地勢 | ひな段 |
| 都市計画 | 市街化区域 |
| 用途地域 | 第一種中高層住居 |
| 防火 | - |
| 高度地区 | - |
| 国土法届出 | - |
| その他法令上の制限 | - |
建物
| 構造 | 木造 | 完成年月 | - |
|---|---|---|---|
| 建築面積 | - | 敷地面積 | - |
| 建物面積 | 114.27m 2 ( 34.56坪 ) | 階建 | 2階建 |
| 間取り | 5DK 南西向き | バルコニー面積 | - |
| リフォーム | - | リノベーション | - |
| 施工会社名 | - | 建築確認番号 | - |
| こだわり条件 |
|
||
| 設備・条件 | 建築年が不明です。築80年ぐらいです。 建物の2階部分昭和43年に増築されていますが未登記です。 |
||
| 構造 | 木造 | ||
|---|---|---|---|
| 完成年月 | - | ||
| 建築面積 | - | ||
| 敷地面積 | - | ||
| 建物面積 | 114.27m 2 ( 34.56坪 ) | ||
| 階建 | 2階建 | ||
| 間取り | 5DK 南西向き | ||
| バルコニー面積 | - | ||
| リフォーム | - | ||
| リノベーション | - | ||
| 施工会社名 | - | ||
| 建築確認番号 | - | ||
| こだわり条件 | |||
| 設備・条件 | 建築年が不明です。築80年ぐらいです。 建物の2階部分昭和43年に増築されていますが未登記です。 |
||
その他
| 現況 ・ 入居 | 空家 ・ 即時 | 取引態様 | 仲介 |
|---|---|---|---|
| 次回更新日 | 2026/03/20 | 担当者 | 志々田 幸治 |
| 現況 ・ 入居 | 空家 ・ 即時 |
|---|---|
| 取引態様 | 仲介 |
| 次回更新日 | 2026/03/20 |
| 担当者 | 志々田 幸治 |
ローンシミュレーション
- 金利
- 頭金
- ボーナス(1回分)
- 返済期間
| ボーナス | 計算中・・・ | 計算中・・・ | 計算中・・・ |
|---|---|---|---|
| 計算中・・・ | 計算中・・・ | 計算中・・・ | 計算中・・・ |
| 計算中・・・ | 計算中・・・ | 計算中・・・ | 計算中・・・ |
| 計算中・・・ | 計算中・・・ | 計算中・・・ | 計算中・・・ |
※ボーナスは年2回で計算しています。
※物件購入には別途諸費用がかかります。
こちらの物件もあります。
2500万 円
広島県呉市広古新開
新広駅から徒歩 25分
300万 円
広島県呉市上山田町
呉駅から徒歩-分
310万 円
広島県呉市音戸町波多見
呉駅から徒歩-分
1700万 円
広島県呉市音戸町波多見
呉駅から徒歩-分
350万 円
広島県呉市東鹿田町
呉駅から徒歩-分
2200万 円
広島県呉市阿賀北
安芸阿賀駅から徒歩-分
600万 円
広島県呉市焼山ひばりケ丘町
呉駅から徒歩-分
2500万 円
広島県呉市焼山宮ケ迫
呉駅から徒歩-分
4160万 円
広島県呉市宮原
呉駅から徒歩-分
1790万 円
広島県呉市郷原野路の里
590万 円
広島県呉市焼山宮ケ迫
呉駅から徒歩-分
600万 円
広島県呉市焼山政畝
450万 円
広島県呉市焼山政畝
呉駅から徒歩 3分
1350万 円
広島県呉市上畑町
呉駅から徒歩 41分
750万 円
広島県呉市三和町
呉駅から徒歩 27分





前面道路は普通車通行が可能です。普通車1台分の駐車場があります。
2階にはサンルームがあり、お天気が悪くても洗濯物の出し入れの心配が不要です。