呉市広白岳にある分譲一戸建の賃貸です。駐車場スペースも広く、宅配ボックスやモニターホンなどの設備も充実しています。ウォークインクローゼット等収納もたっぷりです。 【告知事項あり】
1フロア一世帯のデザイナーズマンション。分譲マンションに劣らない充実した設備。床暖房・ビルトインエアコン・東南角の日当たりと、快適なリビング。階段で洋室やお風呂・ロフトへと移動する間取り。写真では伝わりきらないこの良さを、ぜひ一度現地にてご覧ください。
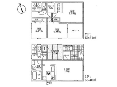
無垢のフローリング、食洗器・IHコンロ付カウンターキッチン、浴室乾燥機浴室、1・2階にある温水洗浄便座付きトイレ、各部屋クローゼット付き、ロフト収納、広い駐車場などなど、おすすめポイントたくさんの新築一戸建てです。現地ご案内可能です。
本通 中国銀行さんの東側にある2LDKマンションです。東向きのバルコニーから光が入り明るいLDK。分譲マンションのようなエントランス、オートロックつきです。呉医療センターへも近く、お務めされる方におすすめです。
リフォーム物件。ウォークスルークローゼットやサービススペースなど、収納スペースも充実したお部屋です。
中央2丁目 今西公園隣の築浅マンションです。呉駅まで徒歩5分で利便性も◎。オール電化ゆったり44㎡。オートロック・エレベーター付き。無料Wi-fiも完備!
ゆったり間取りの3LDKです。駐車場付き。呉ポートピアパーク・支所・保育園・小学校が近くにあり、小さいお子様がいらっしゃる方にもおすすめです。
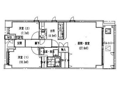
吹き抜けで開放的なLDKは12帖とゆったりしています。隣接駐車場を1.3万円でご契約が可能です。ぜひ中をご覧ください
オートロック・24Hセイキュリティー付の安心マンションです。お風呂は追い炊きが出き、入浴時間がまちまちなご家族にも好評です。隣接駐車場がついています。ぜひ、室内をご覧ください。
駐車場つきの分譲賃貸マンションです。
呉信用金庫ホールそばの好立地です。3LDKでご家族におすすめです。キッチン・トイレ・バスがきれいです
小学校・こども園・支所・銀行・呉ポーが徒歩圏内にあり、利便性がおすすめの天応エリア。バルコニーが広く、窓からたっぷり光が入るお部屋です。
静かな環境の天応地区の3DKマンションです。近くに支所や保育園・小学校があり、呉ポートピアパークもすぐそばです。クレアラインのインターもすぐそばで、呉や広島へ通勤の方にも便利です。
キッチン・洗面台がきれいです。南東角部屋 窓が多く、光がたっぷり入ります。中をご案内させていただきますので、ぜひご連絡ください
安芸阿賀駅・セブンイレブンなど近くに有り、利便性のいいマンションです。オートロック・エレベーターと設備充実。
駐車場付き キッチン・洗面台のきれいな2DKマンション。エアコン一台・ガスコンロ新設します
静かな立地です。キッチン・洗面台がきれいで、暮らしやすくなりました。ぜひ、中をご覧ください。
呉市和庄登町にある賃貸マンションです。1室1区画の駐車場付きです。風通しのいい間取になっています。
JR呉駅まで徒歩10分、広島方面へもクレアラインバス停が近いので大変便利です。広めの玄関は活用用途が広がります。メガエッグ1Gbps無料インターネット付き
静かな環境の3DKアパートです。1階なので、下への音の心配もなく、小さな子供さんがいるご家庭にもおすすめです。
駐車場は近隣8、000円でご契約可能です。セコム付きの安心一戸建て
1フロアー1世帯の最上階マンションです。日当たりのいいバルコニーは、南向き。お風呂とトイレには窓があり、換気が行き届きます。
使い勝手のよい間取です!敷地内駐車場付きです。スーパーやコンビニがそばにあり、利便性もいい吉浦です。
使い勝手のよい間取です! バルコニーからは海が見えるおすすめ物件。敷地内駐車場付です。
東中央の好立地で2DKマンション。日当たりのいいバルコニーに接する部屋はとても明るく、快適です。スーパーは徒歩2分のところにあり、生活しやすい環境です。
市役所そばの好立地。オートロック・エレベーター・防犯カメラつき物件です。無料インターネット、温水洗浄便座・ガスコンロ、広めのシューズボックス等ゆとりのある設計・設備がおすすめです。ぜひ、内見ください。
エディオン呉店・裁判所そばの1Kマンションです。オートロック・防犯カメラ・宅配ボックス・無料自転車駐輪場があるおすすめマンションです
オートロック・防犯カメラが付いた安心マンションです。海や呉ポートピアパークがそばにあり、子育てしやすい環境です。保育園・銀行・支所など徒歩圏内にあり、のどかな環境。





